THE RISE – @ MONTERRAZAS PRIME GUADALUPE CEBU

The New Architectural landmark in the heart of Cebu City, The Rise @ Monterrazas Prime Guadalupe.
Introducing The Rise @ Monterrazas Prime Guadalupe Cebu City – Where Elegance Meets Elevated Living!
Nestled amidst the breathtaking landscapes of Cebu City, a new architectural marvel stands tall, redefining luxury living and urban sophistication. Welcome to The Rise @ Monterrazas Prime Guadalupe Cebu City, a visionary masterpiece that harmoniously blends modernity with nature, offering an unparalleled lifestyle experience.
🌇 Prime Location, Elevated Lifestyle 🌇
Project explained by the Expert! Situated in the prestigious Monterrazas de Cebu enclave, this landmark development enjoys an enviable location that provides stunning panoramic views of Cebu’s skyline, the sea, and the lush hillsides. Imagine waking up to awe-inspiring sunrises and winding down with captivating sunsets right from the comfort of your home.
Gallery





























LIVE INTERVIEW OF THE EXPERT!
Permits, impact study on The Rise at Monterrazas in order – project engineer #TheBigStory | Project engineer and content creator Slater Young says permits and regulatory requirements are in order for the controversial Cebu City development, The Rise at Monterrazas. Construction for the luxury condominium has yet to start amid more layers of consultation and certification.
Unit Sizes
- Unit sizes (including indoor and outdoor area):
- 2-Bedroom: 179sqm-272sqm (P35M-P42M) SOLD OUT
- 3-Bedroom: 244sqm-508sqm (P56M-P77M)
- Loft: 409sqm-533sqm (P94M-P118M)
- Bi-Level Pool: 625sqm-724sqm (P125M-P133M)
- Panorama Penthouse: 442.75 sqm-537 sqm (P388M & above)

Unit Floor Plans
The Rise’s architectural design stands as a testament to innovation and aesthetic mastery. Its contemporary facade seamlessly integrates with the surrounding environment, creating an iconic presence that is both striking and elegant. Each element is thoughtfully curated to evoke a sense of luxury and timelessness, making The Rise a true gem within the city.

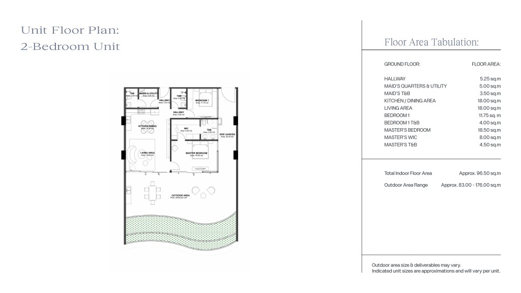
2-Bedroom Unit & Deliverables








3-Bedroom Unit & Deliverables












Loft Unit & Deliverables











Bi-Level Pool Unit & Deliverables












Panorama Penthouse Unit & Deliverables















Amenities
Indulge in an array of world-class amenities designed to cater to your every need. From a state-of-the-art fitness center to resort-style swimming pools, sky gardens, and recreational spaces, The Rise provides an exclusive lifestyle that promotes relaxation, wellness, and leisure.







Building Features

PRICE RANGE

(Note: Prices may change from time to time. Please check for updated pricelist)
Frequently Asked Questions About The RISE!


Contact Now 📞

Gedion Padilla, Jr.
- Filipino Homes | Leuterio Realty
- Real Estate Salesperson | Realtor
- PRC ACCREDITED and DHSUD REGISTERED
- UNDER BROKER LICENSE No. 16367 Engr. M.A. Villarubia
- Contact # 0906-242-8575 | 0947-856-2521
- Team X Factor | SubTeam Beautiful Properties
- Main Office Address: 133 Aznar Rd. Cebu City
- Sub-Office Address: Unit 101 G/F Atelier Residences, Juana Osmeña St. Cebu City
- Website: www.gedionpadilla.com
- Facebook: https://www.facebook.com/gedionmpadillajr
- Youtube: https://www.youtube.com/@gedscorner9785/playlists
- Email: greatgedion@yahoo.com